Moradia T1 em Vale da Pinta - Cartaxo

700€ / Mês

  • 2
  • 1
  • 1
  • Útil: 63m2
  • Bruta: 91m2
  • C.E.: E
  • Ano: 2006
  • Ref: 65611-MCGO62601

Localização

Santarém, Cartaxo, Cartaxo e Vale da Pinta, Centro (Vale da Pinta)

Videos

VR Tour

Descrição

* PREFERÊNCIALMENTE CASAIS SEM FILHOS OU PESSOAS SOZINHAS
* CONTRATO INICIAL DE 5 ANOS

Moradia em Vale da Pinta a 4 quilómetros do Centro do Cartaxo e a 15 min, de carro, de Santarém.
Composta por Sala e Cozinha (equipada com fogão, exaustor e frigorífico); Quarto com Closet e Wc Completo.

A Propriedade tem um Anexo, que poderá ser arrendado, juntamente com a Moradia, por um valor adicional de 100€/Mês.

Localizada numa zona rural, calma e rodeada de natureza.
A cinco minutos da Escola Básica e Secundária, zona com Cafés, Restaurantes e Clube Desportivo.

Conheça o Vale da Pinta através do nosso Video!

Faça aqui, também, a Sua Visita Virtual!

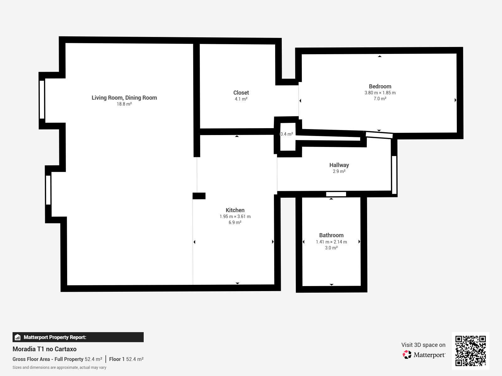
Divisões

Plantas

Nome do piso: Piso 0

Divisão Área Nota
Sala 18.80m2
Cozinha 6.90m2
Quarto 7.00m2
Closet 4.10m2
WC 3.00m2
Corredor 2.90m2